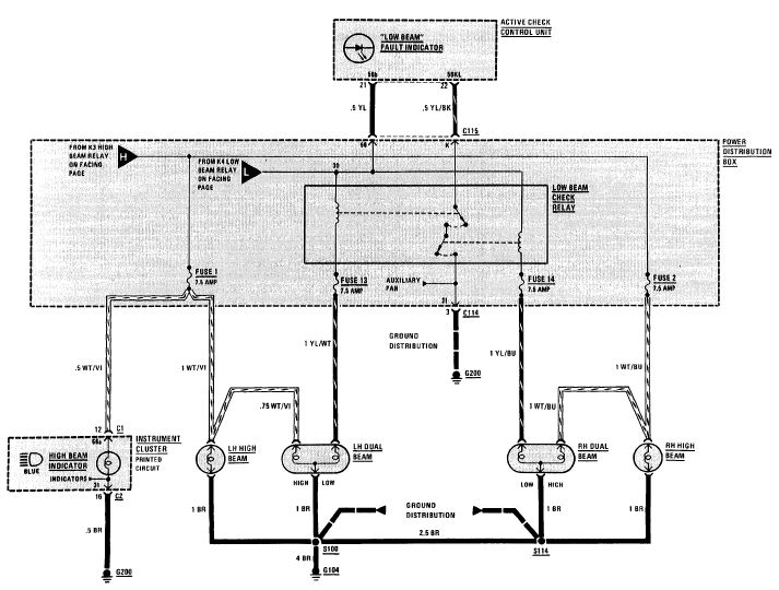
So I find out my car has an integrated low beam check system that is integrated into the circuit board under the fuse box. Every time I put my lows on the light in the check panel comes on. Lights work fine. I can live with this.
However; since I installed the factory fog lights and plugged them into the pre-wired plugs something odd happens.
when I put the fogs on the green light in the dash comes on. but no fog lights. when I put the parking lights on and put the fogs on the low beams come on dim. But still no fogs.
I checked fuses; I checked relays. Both my low and fog light relays are the light blue ones. I swapped them to see maybe it was the relay.
any help would be appreciated. Thx.
However; since I installed the factory fog lights and plugged them into the pre-wired plugs something odd happens.
when I put the fogs on the green light in the dash comes on. but no fog lights. when I put the parking lights on and put the fogs on the low beams come on dim. But still no fogs.
I checked fuses; I checked relays. Both my low and fog light relays are the light blue ones. I swapped them to see maybe it was the relay.
any help would be appreciated. Thx.



Comment